Miège, Bel appartement de 80m2 avec grand balcon et jardin de 75m2

route de Planige 12, 3972 Miège

CHF 390'000.-
1
2
3
4
5
6
7
8
9
10
11
12
13
14
15
16
17
18
    18 photos     OpenStreetMap     Fichier ou plan   
  • Prix de vente : CHF 390'000.-
  • Surface habitable : ~ 80 m²
  • Disponible : A convenir

Description

Situé au 1er étage de la résidence « La Rotse », construite en 1991, cet appartement de 3,5 pièces se trouve à la route de Planige 12, au cœur du charmant village de Miège (commune de Noble-Contrée).

Bénéficiant d’un emplacement privilégié, il se situe à moins de 10 minutes du centre-ville de Sierre et à environ 20 minutes de la station de Crans-Montana, tout en profitant du cadre paisible et familial du village (écoles, commerces, crèche, transports publics, sociétés locales, espaces verts et aires de jeux à proximité).

Orienté nord-sud-ouest, le logement bénéficie d’une belle luminosité naturelle grâce à ses nombreuses fenêtres. La distribution des pièces est optimale, offrant une excellente séparation des espaces. L’espace nuit comprend deux chambres confortables ainsi qu’une salle d’eau équipée d’une douche et d’une baignoire.

L’espace jour, clair et lumineux, se compose d’un hall de distribution avec rangements intégrés, d’une cuisine fermée et d’un spacieux séjour. L’appartement a été bien entretenu mais il mérite quelques travaux de mise au goût du jour.

Véritable atout de ce bien, le grand balcon et le jardin offrent un cadre idéal pour profiter pleinement des beaux jours, en toute saison.

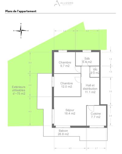
L’appartement dispose d’une surface habitable brute de 80 m2, à laquelle s’ajoutent un balcon de 26.8 m2 (total de la surface de vente pondérée avec 1/2 balcon = 93.4 m2) et un jardin utilisable de 78 m2. La distribution des pièces s’organise de la manière suivante, en considérant les surfaces habitables nettes (=balayables) :

  • Un hall de distribution de 11.1 m2 avec armoires intégrées,
  • Un séjour avec cheminée de 18.4 m2,
  • Une cuisine fermée de 7.7 m2,
  • Deux chambres de respectivement 9.7 et 12 m2,
  • Une salle d’eau avec baignoire et douche de 6.4 m2,
  • Un WC/visiteurs de 2 m2,
  • Un grand balcon de 26.8 m2 et un jardin de 75 m2.

Le bien comporte également une grande cave fermée et l’accès à une buanderie commune.

Une place de parc extérieure couverte peut être acquise en sus.

En excellent état et très bien entretenue avec des travaux réguliers, cette petite PPE de 4 appartements présente des charges mensuelles peu élevées.

Points forts :

  • Environnement calme et ensoleillé
  • Situation idéale entre ville et montagne
  • Petit immeuble de 4 appartements
  • Grande terrasse avec jardin privatif

Tout afficher

Détails


  • Pièce(s) : 3.5
  • Chambre(s): 2
  • Salle(s) d'eau: 2
  • Niveau: 1. Etage
  • Catégorie : Appartement
  • Réf. : 2164

 Exposition


 Environnement


 Ensoleillement et vue


Situation géographique

Ouvrir dans OpenStreetMap