Sion, bel appartement de 4.5 pièces lumineux de 105 m2 avec un grand balcon vitré et place de parc RÉSERVÉ

rue de St-Guérin 30, 1950 Sion

CHF 480'000.-
1
2
3
4
5
6
7
8
9
10
11
12
13
14
15
16
17
18
19
    19 photos     Google Maps     Fichier ou plan   
  • Prix de vente : CHF 480'000.-
  • Surface habitable : ~ 105 m²
  • Disponible : Réservé

Description

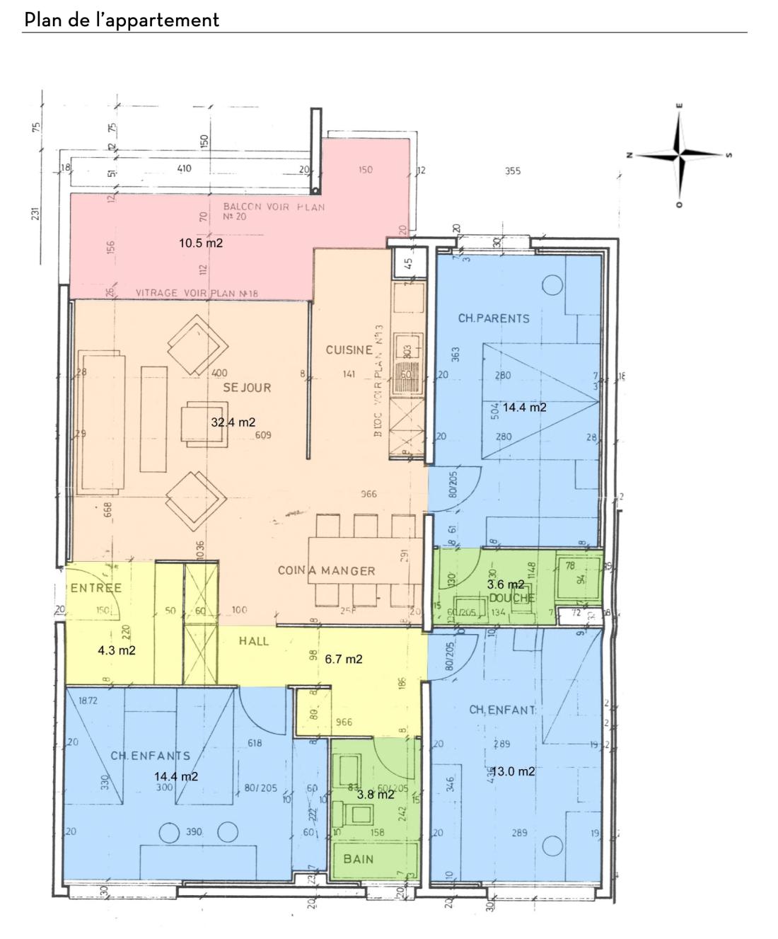
Ce bel appartement de 4.5 pièces, d’une surface de 105 m2, est situé au 7ᵉ étage de l’immeuble « Les Trolles », construit en 1973-1974 à la rue de St-Guérin 30 à Sion. Cet immeuble de qualité, réalisé à l’époque par un bureau d’architectes reconnu, offre des prestations soignées.

Sa situation est très intéressante : à proximité immédiate du centre-ville et de toutes les commodités (commerces, espaces publics, transports, centres médicaux, écoles, parcs, piscine, infrastructures sportives…), tout en bénéficiant d’un accès rapide à l’autoroute et en étant parfaitement au calme.

Surtout, l’appartement n’a aucun vis-à-vis et offre un dégagement complet et garanti à terme, tant sur les châteaux, le Bietschorn, le col de la Forclaz, etc.

Dès votre arrivée, vous serez séduit par le caractère privatif de ce bien, puisqu’il est le seul appartement sur le demi-palier. À l’intérieur, le séjour très lumineux, orienté à l’ouest, bénéficie d’un magnifique dégagement sans aucun vis-à-vis. L’appartement présente un très beau potentiel de réaménagement afin d’être remis au goût du jour, avec des espaces bien pensés, des matériaux d’origine de bonne qualité et de nombreux rangements intégrés. L’appartement comprend trois chambres confortables, dont une suite parentale avec salle de douche attenante. Une seconde salle d’eau, équipée d’une baignoire, vient compléter ce bien.

Un grand balcon entièrement vitré, orienté sud-ouest, offre une véritable pièce supplémentaire lors des belles journées et bénéficie d’un excellent ensoleillement.

La surface habitable brute s’élève à 105.6 m2, à laquelle s’ajoute un balcon de 10.5 m2 (total de la surface de vente pondérée avec 1/2 balcon = 110.8 m2). L’appartement s’organise de la manière suivante en considérant les surfaces habitables nettes (=balayables) :

  • Une entrée avec rangements intégrés de 4.3 m2,
  • Une grande pièce à vivre avec cuisine semi-ouverte (mur non porteur) de 32.4 m2,
  • Un hall de distribution de 6.7 m2 avec armoires intégrées,
  • Une chambre parentale orientée Ouest de 14.4 m2 et salle de douche attenante de 3.6 m2,
  • Deux chambres enfant orientées Est, l’une avec armoires intégrées de 14.4 m2 et l’autre de 13 m2,
  • Une salle de bain de 3.8 m2,
  • Un balcon entièrement vitré de 10.5 m2.

Le bien comprend également une place de parc intérieure en sus dans le prix de vente et l’accès à une buanderie commune à l’Immeuble.

Points forts :

  • Situation idéale en ville (à proximité du centre et de la gare)
  • Appartement traversant avec aucun vis-à-vis
  • Pièces spacieuses et lumineuses
  • Fort potentiel de réaménagement

Tout afficher

Détails


  • Pièce(s) : 4.5
  • Chambre(s): 3
  • Salle(s) d'eau: 2
  • Catégorie : Appartement
  • Réf. : 2167

 Exposition


 A proximité


 Environnement


 Extérieur


 Intérieur


 Ensoleillement et vue


Situation géographique

Voir en Street View    Voir sur Google Maps